


3JACQ
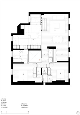
Le grand appartement sous les toits rue Saint Jacques a été rénové et repensé avec l’ajout d’un studio, transformant l’appartement en duplex. Accueillant une famille avec trois enfants, l’objectif des clients était d’offrir une vraie chambre à chacun.
Type
Rénovation d'un duplexe
Lieu
Paris 5ème, France
Surface
137m²

Le studio se situant juste en dessous du salon, le nouvel escalier a été placé au centre de l’espace jour le long de poutres en bois, évitant de scinder le salon. L’espace jour a été ouvert, permettant une double exposition.



L’ancienne petite cuisine cloisonnée s’est transformée en grande cuisine ouverte sur le séjour, capable de réunir la famille de 5 personnes. Un petit bureau a pris la place de l’ancienne cuisine, ouvert visuellement par des verrières créant une petite bulle à part dans les nuages.





La reprise de la charpente par des poutres métalliques et la mise en évidence de la structure en bois a donné l’opportunité d’une nouvelle couleur. Le jaune se retrouve sur tous les éléments nouveaux : la structure métallique, l’escalier sur mesure, la verrière du bureau, la menuiserie et encore l’ilot de la cuisine.

Crédit photos : BCDF studio & OUI
3JACQ
Le grand appartement sous les toits rue Saint Jacques a été rénové et repensé avec l’ajout d’un studio, transformant l’appartement en duplex. Accueillant une famille avec trois enfants, l’objectif des clients était d’offrir une vraie chambre à chacun.
Type
Rénovation d'un duplexe
Lieu
Paris 5ème, France
Surface
137m²
Le studio se situant juste en dessous du salon, le nouvel escalier a été placé au centre de l’espace jour le long de poutres en bois, évitant de scinder le salon. L’espace jour a été ouvert, permettant une double exposition.



L’ancienne petite cuisine cloisonnée s’est transformée en grande cuisine ouverte sur le séjour, capable de réunir la famille de 5 personnes. Un petit bureau a pris la place de l’ancienne cuisine, ouvert visuellement par des verrières créant une petite bulle à part dans les nuages.


La reprise de la charpente par des poutres métalliques et la mise en évidence de la structure en bois a donné l’opportunité d’une nouvelle couleur. Le jaune se retrouve sur tous les éléments nouveaux : la structure métallique, l’escalier sur mesure, la verrière du bureau, la menuiserie et encore l’ilot de la cuisine.


La rénovation a permis d’ouvrir largement les espaces intérieurs sur le jardin. Le rez-de-chaussée a été aménagé en un espace de vie comprenant deux salons, une cuisine ouverte sur une salle à manger et un bureau, le tout largement ouvert sur le jardin.
Crédit photos : Fabienne Delafraye