


60FER
Cette petite maison des années 1930 dotée d’un long jardin en fond de parcelle sans vis-à-vis était restée dans son jus – des petites pièces desservies par un couloir central depuis l’entrée, une salle de bain pour les 3 chambres de la maison et pas de lien direct sur le jardin.
Type
Extension et rénovation d'une maison
Lieu
Saint-Cloud, France
Surface
120m²

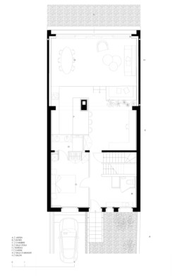
L’extension de 40m² greffée à l’arrière de la maison offre une vue traversante depuis l’entrée vers le jardin. Conçue comme un grand espace séjour / salle à manger, l’extension a son sol en béton ciré plus bas que celui du rez-de-chaussée de la maison afin d’ouvrir un lien direct avec le jardin.




La cuisine, positionnée au cœur de la maison dans l’ancienne partie surplomb l’espace ouvert.
La structure de l’extension a été réalisée en béton et acier, et sa charpente est en bois a toitures inversées : une longue verrière lie les deux toitures et apporte de la lumière dans l’espace central de la maison.


L’ancien conduit de cheminée a été conservé, fonctionnant comme aération de la chaudière existante, et laissé dans son aspect d’origine, la brique a été repeinte en gris foncé faisant écho aux menuiseries extérieures.










Crédit photos : Valentin Bergès
Dessins et images : OUI
60FER
Cette petite maison des années 1930 dotée d’un long jardin en fond de parcelle sans vis-à-vis était restée dans son jus – des petites pièces desservies par un couloir central depuis l’entrée, une salle de bain pour les 3 chambres de la maison et pas de lien direct sur le jardin.
Type
Extension et rénovation d'une maison
Lieu
Saint-Cloud, France
Surface
120m²

L’extension de 40m² greffée à l’arrière de la maison offre une vue traversante depuis l’entrée vers le jardin. Conçue comme un grand espace séjour / salle à manger, l’extension a son sol en béton ciré plus bas que celui du rez-de-chaussée de la maison afin d’ouvrir un lien direct avec le jardin.




La cuisine, positionnée au cœur de la maison dans l’ancienne partie surplomb l’espace ouvert.
La structure de l’extension a été réalisée en béton et acier, et sa charpente est en bois a toitures inversées : une longue verrière lie les deux toitures et apporte de la lumière dans l’espace central de la maison.


L’ancien conduit de cheminée a été conservé, fonctionnant comme aération de la chaudière existante, et laissé dans son aspect d’origine, la brique a été repeinte en gris foncé faisant écho aux menuiseries extérieures.










Crédit photos : Valentin Bergès
Dessins et images : OUI